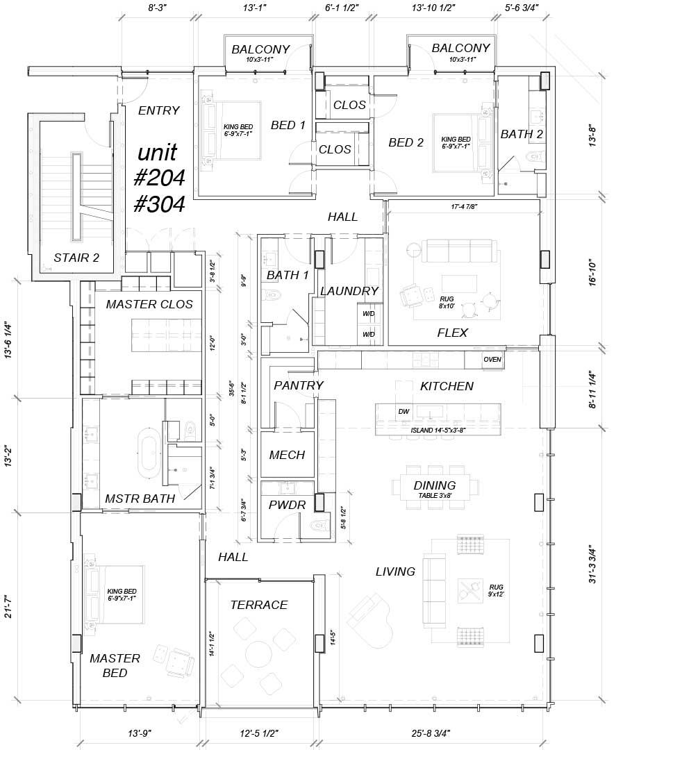
204

LEVEL 2&3 RESIDENCIES

UNIT #             204 / 304 

BEDS                3

BATHS             3.5

INTERIOR SF     3,744

EXTERIOR SF    269

TOTAL SF         4,013

Residence 204

3 bed, 3.5 bath, 4,069 total sf

Residence 204

3 bed, 3.5 bath, 4,069 total sf